
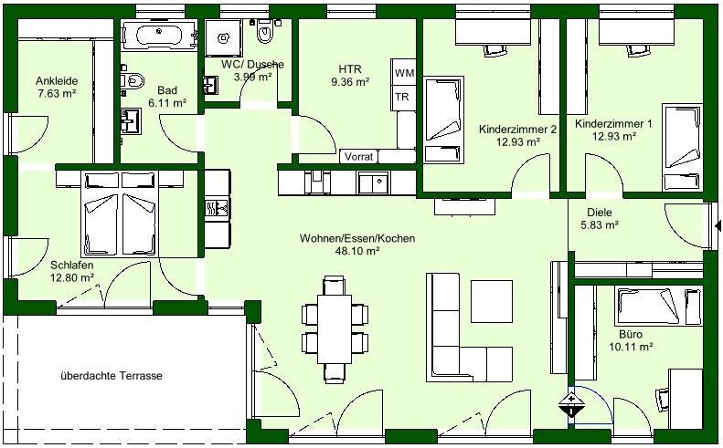
Bungalow 130 für Familie Spägele
So könnte ihr Bungalow aussehen!
Erdgeschoss

Wohnbereich

Essen und Kochen

Kinderzimmer

Schlafzimmer - hinter dem Bett ist die Ankleide

Fertighäuser und Massivhäuser mit Preisen für Bayern und Baden-Württemberg. Schnellinfo: 0174-973 974-3

So könnte ihr Bungalow aussehen!




